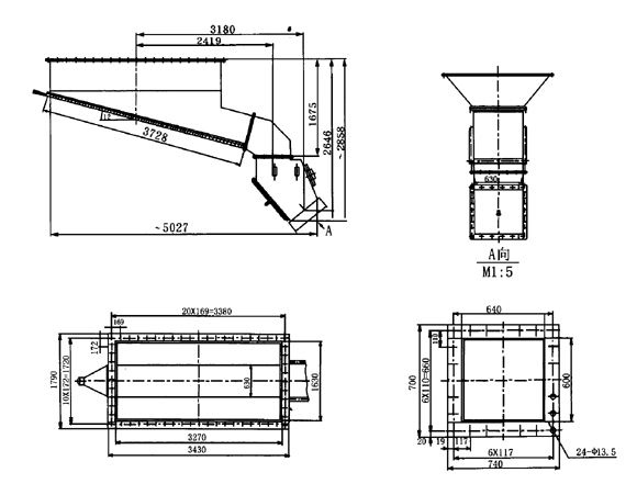
鎖風裝置
用途:
鎖風裝置主要用于水泥廠原料磨卸料鎖風。
技術性能:
鎖風裝置生產能力:通過能力為600t/h
鎖風裝置充氣出料溜子:充氣量
鎖風器:充氣量200~
外形安裝尺寸見圖:

上一頁:[閥門]
下一頁:XG系列旋轉加料器
用途:
鎖風裝置主要用于水泥廠原料磨卸料鎖風。
技術性能:
鎖風裝置生產能力:通過能力為600t/h
鎖風裝置充氣出料溜子:充氣量
鎖風器:充氣量200~
外形安裝尺寸見圖:
