MF生料均化庫
一、 概述
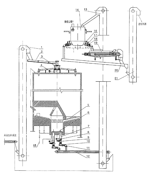
MF生料均化庫采用分配器和六根斜槽呈輻射狀卸入庫內,基本形成水平料層,庫底是錐形,略向中心頃斜,中部有一中心混合室,中心室與庫壁之間的庫底分為6-14個充氣區,每區設3條充氣斜槽和1個卸料孔,卸料時向兩相對區輪流充氣,在卸料口上方出現多股漏斗凹陷,漏斗沿直徑排成一列,隨充氣的交換而旋轉角度,這樣不但產生重力混合,而且生料從庫底卸入中心室后,中心室底部連續充氣,使生料又獲一次均化,由于這種庫的均化原理是以料流漏斗重力混合為主要手段,所以電耗極省,能耗僅為0.432-0.576kwh/t,均化值可達7-10,該系統具有高效節能,基建投資低和操作管理簡便等優點。
二、 MF生料均化庫技術參數表
|
序號 |
名稱 |
規格 |
數量 |
備注 |
|
1 |
提升機 |
|
|
工藝定 |
|
2 |
空氣輸送斜槽 |
|
|
工藝定 |
|
3 |
庫頂分料器 |
Φ1250mm |
1臺 |
工藝定 |
|
4 |
風機 |
13m3/min 19.6kPa |
1臺 |
|
|
5 |
外充氣槽系統 |
|
1套 |
工藝定 |
|
6 |
中心室充氣槽系統 |
|
1套 |
工藝定 |
|
7 |
出料口 |
200mm |
2套 |
|
|
8 |
閘板截流閥 |
310×310mm |
2臺 |
|
|
9 |
氣動回轉閥 |
200mm |
2臺 |
|
|
10 |
排料槽 |
315mm |
2臺 |
|
|
11 |
電動流量控制閥 |
Φ250mm |
2臺 |
|
|
12 |
鏈運機 |
|
|
工藝定 |
|
13 |
提升機 |
|
|
工藝定 |
|
14 |
計量倉 |
Φ4000mm |
1套 |
|
|
15 |
庫底管道系統 |
|
1套 |
工藝定 |
|
16 |
充氣式螺旋閘門 |
B300 |
2臺 |
|
|
17 |
氣動開關閥 |
B300 |
2臺 |
|
|
18 |
電動流量閥 |
B300 |
2臺 |
|
|
19 |
密閉式生料計量喂料機 |
DEM-F1000×3200 |
1臺 |
|
|
20 |
空氣輸送斜槽 |
|
|
工藝定 |
|
21 |
提升機 |
|
|
工藝定 |

您可能會對以下產品感興趣
產品好不好 用我們的業績證明
奧普核心合作伙伴
企業規模怎么樣 用我們的資質說明
生產能力怎么樣 用我們的設備和團隊表明
新聞動態
- 側式懸臂堆料機的構造及原理
- 什么是 熟料散裝機,有哪三大性能特點
- 什么是 氣箱脈沖布袋除塵器,安裝注意事項概述
- 橋式刮板取料機的特點及操作注意事項
- 什么是圓盤給料機,有哪些優勢特點
- 斗式提升機的六大特點概述
- 操作連續式均化庫的四大注意事項
- 移動式堆料機三大優勢特點及使用步驟
- 關于網站內容違禁詞、極限詞失效說明
- 斗式提升機的工作過程分為哪三個階段
- 生料均化庫在運行中需要定期檢查哪些項目,不看后悔!
- 影響生料均化庫均化效果的常見因素,看完就明白了!
- 談談關于涂裝設備的未來發展趨勢如何
- MF生料均化庫采用分配器和六根斜槽呈輻射狀卸入庫內
- 間歇式均化庫是分區均化的一種
- 公司組織開展連續式均化庫“安全日”活動
- 生料均化庫的制作
- 排除水泥機械滾動軸承故障分析
- 生料均化庫的單機聯動試車是什么?


