熟料散裝機
一、概述
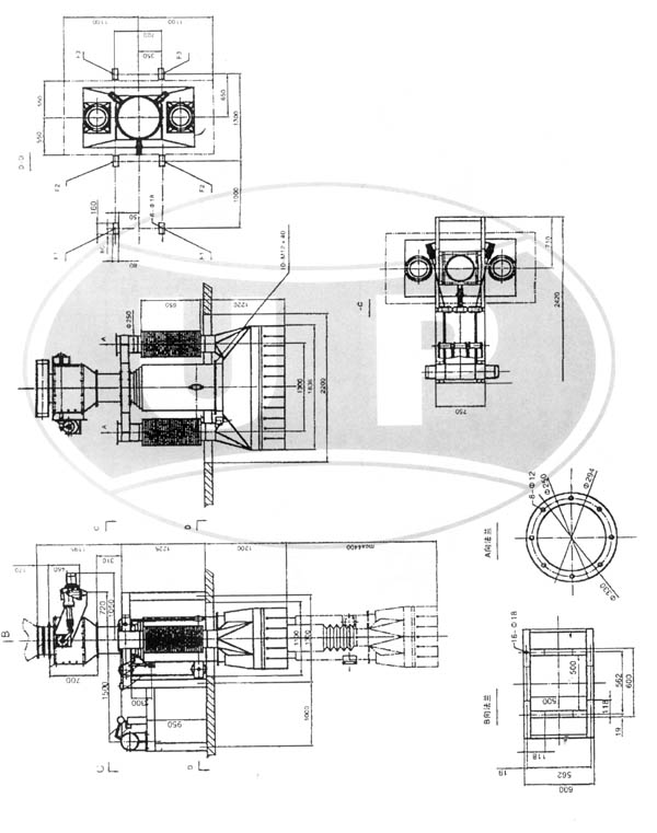
熟料散裝機是從庫內將熟料(≤50mm)自動輸送到熟料散裝車船的設備。庫底水泥熟料散裝設備(見圖一)主要用手動棒閥,電動扇形閥、卷揚裝置,伸縮卸料裝置、收塵軟管,電容式限位開關,電控系統等部分組成。
二、技術參數表
| 技術性能 | 技術參數 | ||
| 輸送物料 | 水泥熟料或類似塊狀物料 | ||
| 物料容重 | 熟料1.45t/m3 | ||
| 物料溫度 | ≤80℃ | ||
| 物料粒度 | ≤50(mm) | ||
| 裝車能力 | 200t/h | ||
| 卸料頭伸縮距離 | 根據用戶要求定制 | ||
| 手動棒閥 | 790X790mm | 410X410mm | |
| 電(氣)動扇形閥(振動給料機) | DZG1103 2X1.1kw | 電液推桿:DTY700-400/100 | |
| 卷揚機 | CD1-180 功率:3KW 升降速度:8M/S | ||
| 電容式(音叉)限位開關 | FTC131探頭規格:Φ20X400 工作壓力:10bar 工作溫度:-40℃ C-200℃ (FTM探頭規格:Φ20X230 加長170mm 工作壓力:10bar) | ||
| 裝機功率 | -5.2kw | -4.5kw(-3kw) | |
| 參照圖 | 示意圖一 | 示意圖二 | 示意圖三 |
| 機型 | 庫底 | 庫底 | 庫側 |
注:熟料散裝機可以通過改變材質來滿足用戶物料溫度,物料粒度的要求。
▲熟料散裝機在廠演裝
三、工作原理
當運輸工具進入裝料位置后,打開棒閥相應的棒條數量。按住控制柜的“下降鈕”,下料頭到位后會自動斷開降電機電源,按“裝車鈕”進入卸料狀態,輔助配套設備會相應開始工作,卸料產生的灰塵通過下料斗,由伸縮收塵軟管進入收塵器凈化,當下料頭的物料裝滿時,下料頭邊上升,邊報警,上升距離要在裝料前設置,若上升距1米,則將時間繼電器的時間調為T=I/V。在上升過程中裝料始終在進行,當下料料滿時,再重復上述動作,到達料滿位置后,按停車鈕,使電振機反制動,或關閉扇形閥停止下料。停車后可按上升按鈕讓下料斗離開物料一定距離,確保運輸工具的移位,再對準第二個卸料工位。直到整個料倉裝滿為止。

▲熟料散裝機包裝
庫底熟料散裝機示意圖(圖一)

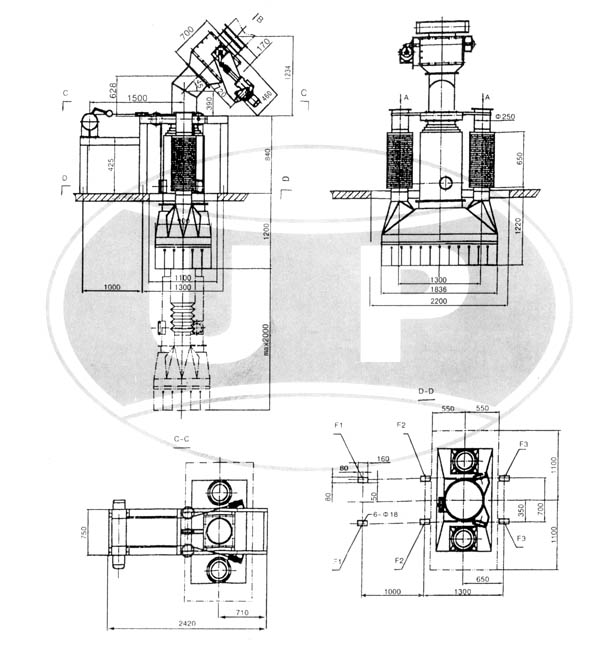
| 物料種類 | 熟料 | 物料容重 | Y=1.25t/m3 | |||||
| 物料溫度 | ≤90℃ | 物料粒度 | ≤150mm | |||||
| 裝車能力 | 220t/h | 散裝頭伸縮距離 | 4400mm | |||||
| 振動給料機 | 型號 | DZG1103# | ||||||
| 功率 | 2X1.lKW | |||||||
| 額定電壓 | 4.7A | |||||||
| 額定電流 | 5000N | |||||||
| 卷揚機 | 型號 | CD12—18D | ||||||
| 起升速度 | 8m/min | |||||||
| 額定起重量 | 20000N | |||||||
| 額定電壓 | 380V | |||||||
| 功率 | 3kw | |||||||
| 電容式 物位開關 | 型號 | FTC131 | Zui大壓力 | 10bar | ||||
| 電壓 | 20V AC | |||||||
| 探頭規格 | Φ25 X400 | 溫度 | -20~80℃ | |||||
| 靜載荷 | 動載荷 | ||
| F1 | 垂直方向 | 3.72KN | ±0.110kN |
| 水平方向 | ±0.120kN | ||
| F2 | 垂直方向 | 6.36KN | ±0.110kN |
| 水平方向 | ±0.120kN | ||
| F3 | 垂直方向 | 7.2KN | ±2.0kN |
| 水平方向 | |||
| F4 | 垂直方向 | 7.8KN | ±2.0kN |
| 水平方向 | |||
| F5 | 垂直方向 | ±3.0KN | ±0.75kN |
| 水平方向 |
技術要求:
1.鋼絲繩端部固定在卷揚機筒中,應牢固以防脫落
2.調整好鋼絲繩,避免散裝頭在提升或降落時不穩發生傾斜
3.安裝后所有滑輪都要輪動靈活
4.收塵能風量為2X3000m3/h
庫底熟料散裝機示意圖(圖二)

庫底熟料散裝機示意圖(圖三)

熟料散裝機安裝示意圖
| 設備基礎及埋件載荷 1.提升裝置:FV=5KN×1.5 FH=20KN×2 2.進料口法蘭:FV=50KN 3.散裝頭基礎:FV=4×10KN×15注四個柱腳止均為:10KN×1.5(系數) FV垂直載荷 FH為水平載荷 | 主要技術參數 1.Zui大卸料能力:200-300T/H 2.物料Zui大粒度:小于50mm 3.物料Zui高溫度:小于150° 4.含塵氣體排放量:4500m3/h 5.提升電機功率:2.2-3KW 6.設備自重:3000kg |

您可能會對以下產品感興趣
產品好不好 用我們的業績證明
奧普核心合作伙伴
企業規模怎么樣 用我們的資質說明
生產能力怎么樣 用我們的設備和團隊表明
新聞動態
- 側式懸臂堆料機的構造及原理
- 什么是 熟料散裝機,有哪三大性能特點
- 什么是 氣箱脈沖布袋除塵器,安裝注意事項概述
- 橋式刮板取料機的特點及操作注意事項
- 什么是圓盤給料機,有哪些優勢特點
- 斗式提升機的六大特點概述
- 操作連續式均化庫的四大注意事項
- 移動式堆料機三大優勢特點及使用步驟
- 關于網站內容違禁詞、極限詞失效說明
- 斗式提升機的工作過程分為哪三個階段
- 什么是 熟料散裝機,有哪三大性能特點
- 熟料散裝機的安裝要點概述,不可錯過
- 什么是粉煤灰散裝機,特點及應用怎樣
- 熟料散裝機的使用注意事項,了解嗎
- 汽車散裝機的安裝、調試與運行要點講解
- 熟料散裝機的安裝要點講解,不可錯過
- 粉煤灰散裝機好評不斷,靠的就是這幾點!
- 了解熟料散裝機的使用及維護注意要點
- 庫底散裝機,還不知道這些知識點
- 熟料散裝機的相關安裝步驟講解


